Centre ACTE
Centre ACTE









Research centre for a better understanding of the nature and origins of commnication difficulties and language delays in Autism Spectrum Disorder
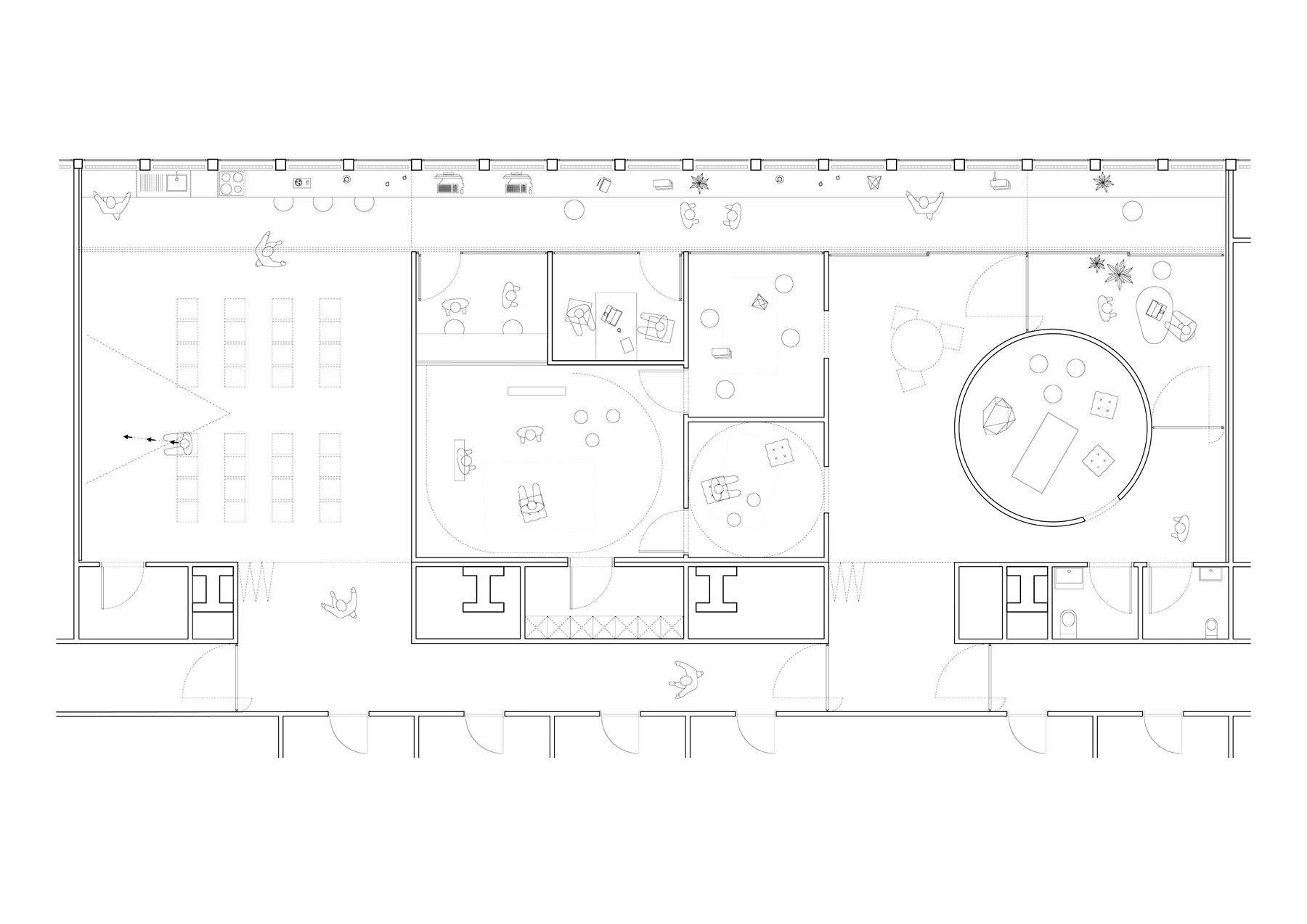
ACTE is a research center dedicated to Autism Spectrum Disorder within the premises of Université libre de Bruxelles. This center provides experimentation and observation rooms, but also spaces where people with autism and their families can grow with confidence, inform themselves and attend scientific conferences. The center revolves around three large areas lined with two separated corridors on eachside. The experimental area, at the heart of the Center includes a big testing room, completely adaptable to respond to the requirements of each on-going study, a technical room in which experimenters can analyze the data collected and one interview room for adolescents and adults with autism and their parents. The conference area consists of a big seminar room. These three research areas and the conference room are complemented by a reception and waiting zone including an igloo shaped Snoezelen of which the design is entirely oriented towards the well-being of the participants: two waiting rooms are designed for children, namely a calm one and a more dynamic one to satisfyboth the needs of those who are seeking stimulation and those who can feel overwhelmed by too much sensory information.
Team
Radim Louda, Paul Mouchet, Valentin Piret, Pierre Burquel, Jonathan Van Saet, Katerina Harnack
- Reference
- P-0012
- Program
-
- Care
- Location
- Brussels
- Area
- 315 m2
- Completion
- 2020
- Client Type
- Public
- Technical Engineering
Zeugma
- Photography
Maxime Delvaux