Condor
Condor









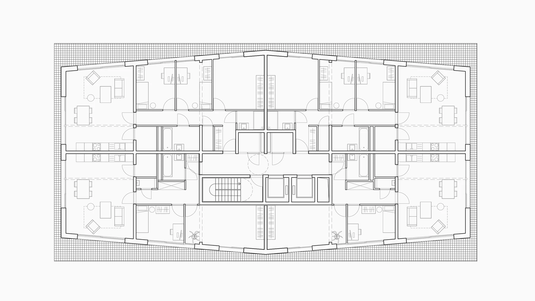
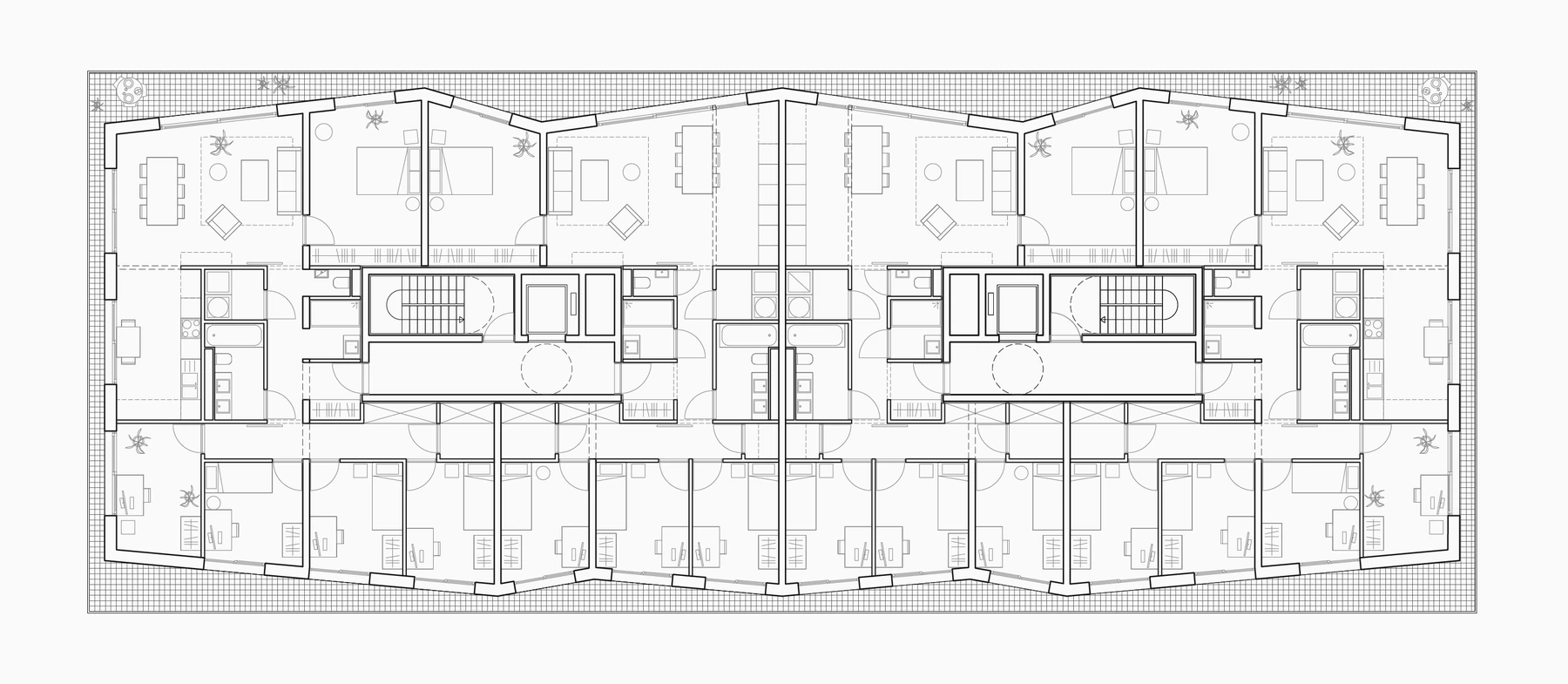
Invitational competition for the construction of 63 homes and a park in Molenbeek, 2nd place, 2017
Team
Radim Louda, Paul Mouchet, Valentin Piret
- Reference
- P-0023
- Program
-
- Residential
- Location
- Brussels
- Completion
- 2018
- Client Type
- Public